Architektonisch anspruchsvolle Apartments
altersgerecht, stilvoll und zukunftssicher
mit Garten, Rollstuhlgerecht oder im Penthouse
als Kapitalanlage oder zur Eigennutzung
für Singles, Renter, Pendler, Mitarbeiter, Studenten...
in Hamburg - Rahlstedt

Baujahr 2027
Bauzeit- und Fertigstellungsgarantie
Erdgeschoss mit ca. 20 m²
eigenem Garten ca. 6 m² Kellerraum mit WM-Anschluss
Rollstuhlgerechtes ca. 20 m²
Obergeschoss ca. 6 m² Kellerraum mit WM-Anschluss
Penthouse mit ca. 25 m²
Dachterrasse ca. 6 m² Kellerraum mit WM-Anschluss
Kaufpreis ab 179.000,- Euro ALLE PREISE HIER
inkl. E-Scooter (Mobilitätskonzept)
courtagefrei
Projektierungs-
pauschale 3,57 % für Baugenehmigung etc.
1 Wohnung - vielseitige Nutzungsmöglichkeiten
Eigennutzung
Altersgerechtes Wohnen / Seniorenwohnung oder für Rollstuhlfahrer (mit mobilem Pflegedienst)
Suchen Sie einen altersgerechten Wohnsitz mit einem barrierefreien Zugang und Bad?
Durch einen mobilen Pflegedient brauchen Sie nicht ins Altenheim umzuziehen und können in dieser Wohnung bis ins hohe Alter bleiben.
Pendlerwohnung / Studentenwohnung / Zweitwohnsitz für Vielreisende oder Weltbürger
Suchen Sie einen zweiten Wohnsitz, weil Sie noch in einer anderen Stadt oder einem anderen Land wohnen?
Bis zu 1.000,- Euro je Monat steuerlich absetzbar als Pendlerwohnung.
Suchen Sie eine Wohnung für Ihr studierendes Kind, welche Sie nach dem Studium vermieten oder verkaufen können, welche gleichzeitig durch die Abschreibungen Ihre Steuerlast mindern können.
Singlewohnung
Möchten Sie sich verkleinern, weil Sie Ihr Haus verkauft haben, jeodch trotzdem einen eigenen Garten haben oder doch nur eine Dachterrasse?
Sind Sie in Scheidung und / oder orientieren Sie sich grade im Leben um und suchen eine modernen Wohnung für Sie alleine?
Energieeffizienz
Möchten Sie lieber in einer kompekteren aber dafür fensterreichen, hochwertigen und energieeffizienten Neubauwohnung mit einem durchdachten Grundriss, statt in einer sanierungs- und modernisierungsbedürftigen Altbauwohnung wohnen?
Möchten Sie zudem von den Förderungen, zinsgünstigeren Darlehen und höheren Abschreibungen eines Neubuas profitieren?
Kapitalanlage und / oder Altersvorsorge
Möchten Sie Ihr Geld sicher Anlegen und vor der Inflation schützen?
Möchten Sie von der höheren Neubau-Abschreibung von 5 % je Jahr (degressive AfA)?
Diese Angaben sind ohne Gewähr. Setzten Sie sich bitte für nähere Auskünfte mit Ihrem Steuerberater in Verbindung.
Suchen Sie eine Altersvorsorge als Kapitalanlage, in welche Sie später selbst einziehen können?
Hotelersatz
Suchen Sie für Ihre Mitarbeiter eine bessere Alternative zu einem Hotelzimmer (über einen längerfristigen Zeitraum ab 6 Monaten), um Kosten zu sparen und die Wohnung abzubezahlen, statt Hotelgebühren zu entrichten?
Suchen Sie dauerhaft nach einer Wohnung für Ihre Mitarbeiten für einen längeren Wohnsitz mit Anmeldung, sodass Sie keine Pension teuer anmieten müssen?
Besonderheiten - Design trifft Licht
Zahlreiche bodentiefe Fensterflächen für eine helle Wohnatmosphäre
als Art "französische Balkone" im Wohnbereich
Nicht nur 1 Fenster, sondern 2 bis 3 bodentiefe Fenster belichten den Wohnbereich mit Tageslicht. Ein festes Element aus Glas dient als elegantes Geländer, die oberen Fenster lassen sich öffenen und verwandeln sich in eine Art "französischer Balkon". So genießen Sie frische Luft und das Gefühl von Freiheit.
Bodentiefe Fenster im Badezimmer
Im Badezimmer sind nahezu alle Wohnungen zusätzlich zu der elektrischen Entlüftungsanlage mit bodentiefen Fenstern ausgestattet. So können Sie das Bad optimal Lüften und sich bei Tageslicht erfrischen.
Privatsphäre durch elektrische Außenjalousien
Dank der elektrischen Außenjalousien bestimmen Sie selbst, wie viel Licht in die Wohnung hereinkommt. In halboffener Position genießen Sie weiterhin den Blick ins Grüne, während Sie gleichzeitig für Schatten, Privatsphäre und eine angenehme Raumtemperatur sorgen.
Erdgeschoss Apartments mit eigenem Garten
Ihr Woh(t)raum in der Natur
Haben Sie schon einmal ein Apartment mit eigenem Garten gesehen? Diese besondere Kombination aus modernem Neubau und privatem Grünbereich schafft nicht nur einen Wohn(t)raum im Inneren, sondern erweitert Ihr Zuhause um einen zusätzlichen Wohlfühlraum unter freiem Himmel – ideal zum Entspannen, Gärtnern oder Frühstücken in der Sonne.
Penthouse Apartments mit eigener Dachterrasse
Kompakter Luxus über den Dächern
Genießen Sie exklusiven Wohnkomfort in luftiger Höhe: Die Penthouse-Wohnungen verfügen über eine private Dachterrasse mit sonniger Südwest-Ausrichtung – perfekt für entspannte Abende, Sonnenuntergänge und ganz persönliche Auszeiten.
Ein Hauch von Luxus – clever geplant und kompakt umgesetzt.
Barrierefrei Wohnen im Obergeschoss
Komfort, der den Alltag erleichtert
Ob im Alter oder mit körperlicher Einschränkung – in diesen rollstuhlgerechten Wohnungen im Obergeschoss genießen Sie unabhängiges, selbstbestimmtes Wohnen in einem modernen Umfeld – ganz ohne den Eindruck eines Pflegeheims.
Ein mobiler Pflegedienst kann Sie bei Bedarf unterstützen, sodass Sie sich bis ins hohe Alter wohl und sicher fühlen.
Die Nähe zum Naturschutzgebiet, zu einer Bäckerei, einem Café und einer Eisdiele lädt zu kleinen Alltagsfreuden ein. Das Zentrum von Rahlstedt mit zahlreichen Einkaufsmöglichkeiten ist mit dem Bus schnell erreichbar – für eine hohe Lebensqualität mit kurzen Wegen und viel Lebensfreude. Der Gemeinschaftsgarten steht allen Bewohnern zur Verfügung und lädt zum Entspannen, Lesen oder geselligen Beisammensein ein.
Fahrstuhl und Stufenlosigkeit
Praktikabilität und Komfort
Ob mit Einkäufen, Ihrem Fahrrad / E-Bike oder dem Rollator – dank des stufenlosen Zugangs und dem modernen Aufzug erreichen Sie Ihre Wohnung oder den Kellerraum ganz bequem.
So wird auch der Einkauf leicht in die Wohnung gebracht – praktisch, komfortabel und durchdacht.
Kellerraum mit Waschmaschinenanschluss
mehr Platz und Komfort für Ihr Zuhause
Zu jeder Wohnung genhört ein ca. 6 m² großer Kellerraum, der Ihnen eine wertvolle und zusätzliche Aufbewahrungsfläche zu Ihrer Wohnung bietet. Hier kann die Waschmaschine laufen und Ihre Wäsche getrocknet werden, so bleibt Ihr Wohnbereich ordentlich und ruhig. Dank des wasserundurchlässigen Betons und der Lüftungsanlage im modernen Kellergeschoss können Sie Ihre Sachen beruhigt lagern und trocknen.
Moderne Bauweise bedeutet
niedrige Betriebskosten,
langfristige Planungssicherheit,
kein Sanierungsbedarf wie bei älteren Immobilien.
Viele ältere Wohnungen locken mit einem günstigen Kaufpreis, verursachen jedoch später hohe Folgekosten: veraltete Heizungssysteme, Sanierungsbedarf durch alte Fenster, alte Leitungen, undichte Keller, veraltete Fassaden, marrode Dächer usw.
Mit diesen Neubauwohnungen vermeiden Sie genau diese Risiken
Weder kostspielige Sanierungen und Modernisierungen, noch überraschende Sonderumlagen - ideal sowohl für Eigennutzer als auch für Kapitalanleger.
Sparen Sie bei den Nebenkosten
Moderne Technik wie eine Photovoltaikanlage, eine effiziente Luft-Wärmepumpe und die energiesparende Bauweise sorgen für dauerhaft niedrige Betriebskosten.
Neubau in massiver Bauweise als Energiesparhaus
Ausstattung - hochwertig und modern
NEUBAU IM JAHR 2027
- Baubeginn voraussichtlich 2027
- Bauzeitgarantie und Fertigstellungsgarantie
- Bauträger (GfG Architektenhäuser, Hoch- und Tiefbau GmbH und Co. KG)
- gemäß Baubeschreibung von GfG Architektenhäuser, Hoch- und Tiefbau
- Neubau als Standard KfW Effizienzhaus 55
- moderne Architektur mit hochwertigen Materialien
- Fassade in anthrazit oder grau bis hellgrau
- Kellergeschoss aus WU Beton (wasserundurchlässiger Beton)
- schlüsselfertige Übergabe
- 5 Jahre Gewährleistung
- hochwärtige Sanitärausstattung
- 3fach verglaste Fenster (Schallschutz)
- Be- und Entlüftungsanlage mit Wärmerückgewinnung
- Luft-Wärmepumpe
- Photovoltaikanlage mit Stromspeicher
- Aufzug für bis zu 6 Personen
- modernes Treppenhaus
- inklusive Malerarbeiten (weiße Wände bei der Übergabe)
- Fliesen aus der umfangreichen Ausstellung können Sie aussuchen
(40,- Euro je m² für das Badezimmer, 30,- Euro je m² für den den Kellerabstellraum)
- inklusive Erschließung
- inklusive Baunebenkosten
- Glasfaseranschluss
- Angebot ohne Bodenbelag im Zimmer, den Bodenbelag können Sie nach Ihren Vorstellungen gestalten
- inklusive Außenanlagen wie die Pflasterarbeiten (außer Gartengestaltung)
nicht inkludiert
- Gartengestaltung (Rasen) und Zäune
- Einbauküche
- Bodenbelag im Zimmer
- Möbel
- Erwerbsnebenkosten (Notar- und Gerichtskosten)
- Aufzug vorhanden (altersgerechte, barrierearme Wohnungen mit Rollstuhl-gerechtem Duschbad im Obergeschoss vorhanden)
- stufenloser Zugang zum Haus
- schwellenfreier Zugang zum Aufzug mit einem Rollstuhl möglich
- 1-Zimmer-Wohnungen mit offener Küche (ohne Einbauküche)
- eigener Garten im Erdgeschoss, rolltuhlgerecht im Obergeschoss und Dachterrasse im Penthouse
- Fußbodenheizung
- Badezimmer mit ebenerdiger Dusche und mit bodentiefem Fenster
- elektrisch steuerbare Außenjalousien
- Zimmer mit zahlreichen bodentiefen Fensterflächen
- bodentiefes Fenter im Badezimmer (außer 2 Wohnungen, dort elektrische Entlüftung)
- Fenster als eine Art "französischer Balkon", da sich die oberen Fensterelemente öffnen lassen und das untere Fensterelement als Geländer dient
- 3fach Isolierverglasung, Fenserrahmen von außen in Anthrazit und von Innen weiß
- elektrische Außenjalousien (Verdunkelung und Sonnenschutz mit Sicht nach Außen möglich)
- modernes Badezimmer mit bodentiefem Fenster, mit ebenerdiger Dusche, Wachtisch und wandhängendem WC (im Obergeschoss rollstuhlgerecht)
(Waschmaschinenanschluss und Wäschetrocknungsmöglichkeit im ca. 6 m² großen Kellerraum mit elektrischer Abluft - über den Fahrstuhl erreichbar)
Zu jeder Wohnung gehört ein ca. 6 m² großer Kellerabstellraum mit einem Waschmaschinenanschluss und einer elektrischen Entlüftung zum Trocknen Ihrer Wäsche und die Unterstellung von Ihrem Fahrrad oder Ähnlichem. Das Kellergeschoss ist über den Aufzug und über das Treppenhaus erreichbar. Das Haus ist stufenlos begehbar.
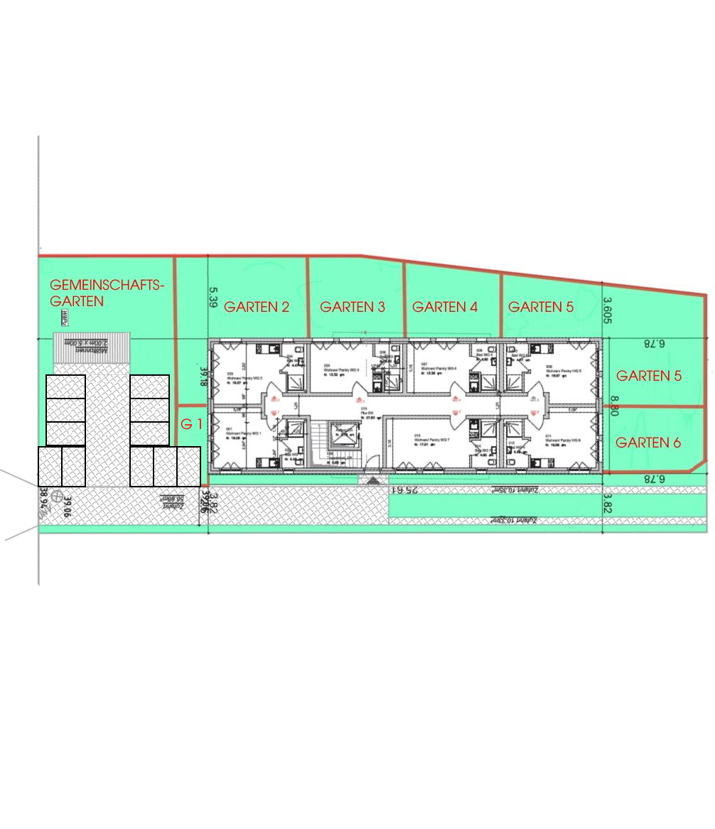
Lageplan / Gärten
- eigene Gärten für die Erdgeschosswohnungen
- Gemeinschaftsgarten
- Leichfahrzeug-Stellplatz (1,5 m x 2,5 m) mit 230 V Steckdose kann für 5.000,- Euro erworben werden
- zahlreiche Kfz-Stellplätze in den umliegenden Straßen
- Bushaltestelle in unmittelbarer Nähe
- Fahrradabstellplatz in dem jeweiligen Kellerraum, stufenlos über den Aufzug erreichbar
- gepflaterter Zugang zum Haus (Außenpflasterarbeiten im Kaufpreis inkludiert, außer Rasen)
- hinter dem Grundstück sowie Südlich befindet sich ein jeweils ein Einfamilienhaus
Erdgeschoss-Wohnungen mit eigenem Garten


GARTEN 2, 3, 4, 5 IM SÜD-WESTEN
GARTEN 5, 6 IM NORD-WESTEN UND SÜD-WESTEN
GEMEINSCHAFTSGARTEN IM SÜD-OSTEN
Kaufpreise der Erdgeschoss-Wohnungen mit dem Garten
Wohnung 1 ca. 20,54 m² Wohnfläche + ca. 6 m² Kellerraum Garten 1 (G1) 179.000,- Euro
für Autoliebhaber – bei Bedarf mit Blick auf Ihr eigenes Fahrzeug 5.000,- Euro L-Stellplatz 1
Wohnung 2 ca. 20,54 m² Wohnfläche + ca. 6 m² Kellerraum Garten 2 229.000,- Euro
Wohnung 3 ca. 18,17 m² Wohnfläche + ca. 6 m² Kellerraum Garten 3 219.000,- Euro
Wohnung 4 ca. 18,23 m² Wohnfläche + ca. 6 m² Kellerraum Garten 4 219.000,- Euro
Wohnung 5 ca. 20,54 m² Wohnfläche + ca. 6 m² Kellerraum Garten 5 239.000,- Euro
Wohnung 6 ca. 20,54 m² Wohnfläche + ca. 6 m² Kellerraum Garten 6 219.000,- Euro
Wohnung 7 ca. 22,36 m² Wohnfläche + ca. 6 m² Kellerraum kein Garten 179.000,- Euro
Alle Kaufpreise zuzüglich 3,57 % Projektierungspauschale (Kosten für die Baugenehmigung, die Teilungserklärung, etc.).
7 Wohnungen als Kapitalanlage 1.483.000,- Euro
Rollstuhlgerechte Wohnungen im Obergeschoss (Aufzug)

MITTLERE WOHNUNGEN 10, 11 IM SÜD-WESTEN
ECKWOHNUNGEN 12, 13 IM NORD-WESTEN UND ZUSÄTZLICH 12 IM SÜD-WESTEN UND 13 IM NORD-OSTEN
ECKWOHNUNGEN 9, 8 IM SÜD-OSTEN UND SUSÄTZLICH 9 IM SÜD-WESTEN UND 8 IM NORD-OSTEN
GEMEINSCHAFTSGARTEN NUTZBAR
Kaufpreise der Rollstuhlgerechten Wohnungen
Wohnung 8 ca. 19,74 m² Wohnfläche + ca. 6 m² Kellerraum rollstuhlgerecht 179.000,- Euro
Wohnung 9 ca. 19,74 m² Wohnfläche + ca. 6 m² Kellerraum rollstuhlgerecht 189.000,- Euro
Wohnung 10 ca. 18,27 m² Wohnfläche + ca. 6 m² Kellerraum rollstuhlgerecht 179.000,- Euro
Wohnung 11 ca. 17,98 m² Wohnfläche + ca. 6 m² Kellerraum rollstuhlgerecht 179.000,- Euro
Wohnung 12 ca. 19,74 m² Wohnfläche + ca. 6 m² Kellerraum rollstuhlgerecht VORGEMERKT
Wohnung 13 ca. 19,98 m² Wohnfläche + ca. 6 m² Kellerraum rollstuhlgerecht 189.000,- Euro
Wohnung 14 ca. 22,19 m² Wohnfläche + ca. 6 m² Kellerraum rollstuhlgerecht 179.000,- Euro
Alle Kaufpreise zuzüglich 3,57 % Projektierungspauschale (Kosten für die Baugenehmigung, die Teilungserklärung, etc.).
7 Wohnungen als Kapitalanlage 1.289.000,- Euro
Penthouse-Wohnungen mit eigener Dachterrasse


DACHTERRASSE 15, 16, 17, 18 IM SÜD-WESTEN
DACHTERRASSE 19 IM SÜD-WESTEN UND NORD-WESTEN, WOHNUNG AUCH IM NORD-OSTEN
Kaufpreise der Penthouse-Wohnungen mit Dachterrasse
Wohnung 15 RESERVIERT
Wohnung 16 ca. 21,20 m² Wohnfläche + ca. 6 m² Kellerraum Dachterrasse 16 225.000,- Euro
Wohnung 17 ca. 23,59 m² Wohnfläche + ca. 6 m² Kellerraum Dachterrasse 17 235.000,- Euro
Wohnung 18 ca. 23,65 m² Wohnfläche + ca. 6 m² Kellerraum Dachterrasse 18 229.000,- Euro
Wohnung 19 ca. 26,09 m² Wohnfläche + ca. 6 m² Kellerraum Dachterrasse 19 239.000,- Euro
Alle Kaufpreise zuzüglich 3,57 % Projektierungspauschale (Kosten für die Baugenehmigung, die Teilungserklärung, etc.).
4 Wohnungen als Kapitalanlage 928.000,- Euro
Optimale Möblierung
Die gesamte Wohnung kann durch die Zeitraum - Agentur mit optimal angepassten Möbeln, einem Schrankbett oder Bettsofa, einer Einbauküche und sogar voll ausgestattet "Löffelfertig" für die möblierte Vermietung eingerichtet werden.
Kapitalanlage / Altersvorsorge / Investment / Inflationsschutz / Vermögensaufbau
Nutzen Sie die Vorteile einer Neubau-Immobilie
- 5 % Neubau-Abschreibung (degressive AfA)
- Erstbezug nach Neubau gem. §556f BGB von der Mietpreisbremse ausgenommen
Sie können die Wohnungen unmöbliert an Alleinstehende, Studenten oder im Ausland ansässige mit einem Zweitwohnsitz vermieten.
Rentner können sich zusätzlich einen mobilen Pflegedient, welcher z. B. in der Meiendorfer Straße 61 ansässig ist, bestellen.
Sie können die Wohnungen möbliert
an Pendler, Facharbeiter vermieten oder an Unternehmen als dauerhafte Wohnung für deren Mitarbeiter als Hotelersatz anbieten, sodass die Ersparnis für den Mieter bei ca. 70 % an Hotelkosten im Vergleich zu einem Hotelzimmer in Hamburg liegen wird.
Berufliche Pendler bzw. Arbeitnehmer mit einem Zweitwohnsitz können bis zu 1.000,- Euro der Kosten für die Unterkunft / Wohnung als Werbungskostenpauschale steuerlich absetzen.

Lage
- Hamburg - Rahlstedt - Meiendorf
- Naturschutzgebiet Tunneltahl (Fluss Wandse) auf der gegenüberliegenden Straßenseite
- Einkaufsmöglichkeiten für den täglichen Bedarf (Netto), Drogerie und Tankstelle wenige Meter entfernt
- Einkaufsmöglichkeiten wie Netto und Budnikowski eine Bäckerei sowie Tankstelle, ein kroatisches Restaurant, Sushi, eine Eiscafé, ein Friseur, in wenigen Metern erreichbar
- Aldi, 2 Banken und Tierbedarf in der Nähe
- Einkaufszentrum Rahlstedt mit dem Bus schnell erreichbar
- Bushaltestelle der Linie 24 in Grundstücksnähe- 3 Bushaltestellen zum Zentrum, Busbahnhof und Bahnhof Rahlstedt mit der Regionalbahn RB 81 (zukünftig S4)
(ca. 15 Minuten Fahrtzeit zum Hamburger Hauptbahnhof vom Bahnhof Rahlstedt über RB 81)
oder zur U-Bahn U1 Berne
(ca. 25 Minuten Fahrtzeit zum Hamburger Hauptbahnhof von der U-Bahn-Berne)
- Mobilität durch den inkludierten E-Scooter gewährleistet
- an der Straße, die zu den Walddörfern (Sasel, Volksdorf, etc.) und nach Ahrensburg führt
- zahlreiche Neubauten in der nahen Umgebung
- sehr gute Verkehrsanbindung an die Autobahn 1 (weiter A24 und Horner Kreisel) und Bundesstraße 75
Vermietung an Pendler oder Mitarbeiter der Gewerbe
- Gewerbegebiet Bargkoppelweg in unmittelbarer Nähe
- Gewerbegebiete in der nahen Umgebung (rosa markierte Grundstücke)
- Gewerbegebiet Höltigbaum
- Gewerbegebiet Merkurpark
- Gewerbegebiet Stapelfeld / Braak
NATURSCHUTZGEBIET SCHNELL ERREICHBAR AUF DER GEGENÜBERLIEGENDEN SEITE
Mobilitätskonzept
Die Bushaltestelle der Linie 24 befindet sich in der Nähe des Grundstücks.
Sie erhalten zusätzlich eine flexible Mobilität durch einen inkludierten E-Scooter, mit dem Sie den Bahnhof Rahlstedt, die U-Bahn U1 Berne oder auch andere Ziele unabhängig vom Verkehr über den Fahrradweg schnell erreichen können.
Unser zukunftsweisendes Mobilitätskonzept bietet Stellflächen inklusive Ladestruktur für moderne Elektro-Leichtfahrzeuge (Kabinenroller) und E-Mofas / E-Chopper etc.
INKLUSIVE Premium E-Scooter zu jeder Wohnung

Abbildung exemplarisch. Das tatsächliche Modell kann in Form, Farbe und technischer Ausstattung abweichen. Technische Änderungen vorbehalten.
Der Kaufpreis jeder Wohneinheit beinhaltet als festen Bestandteil der Ausstattung ein fabrikneues Elektro-Scooter (Modell SEGWAY Ninebot KickScooter MAX G3 D oder ein zum Zeitpunkt der Übergabe gleichwertiges Nachfolgemodell nach Wahl des Verkäufers.
Ihren E-Scooter können Sie Ihrem ca. 6 m² großen Kellerraum laden, welchen Sie stufenlos und bequem über den Fahrstuhl erreichen.
Übergabe & Bedingung
Die Aushändigung des E-Scooters erfolgt unmittelbar im Anschluss an die vollständige Kaufpreiszahlung, zeitgleich mit der Schlüsselübergabe der Wohnung. Ein vorzeitiger Herausgabeanspruch besteht nicht.
Haftung & Service
Da es sich um ein technisches Zubehörprodukt eines Drittunternehmens handelt, erfolgt die Bereitstellung unter Ausschluss der baurechtlichen Gewährleistung durch den Verkäufer. Dies gilt insbesondere für die Akkuleistung, Software-Updates oder künftige Betriebsstörungen. Sämtliche Garantie- und Serviceansprüche aus dem Kauf des Geräts werden vom Verkäufer an den Käufer abgetreten und sind ausschließlich direkt gegenüber dem Hersteller oder dessen autorisierten Servicepartnern geltend zu machen. Eine Barauszahlung des Gegenwerts oder eine Kaufpreisminderung bei Verzicht auf das Fahrzeug ist ausgeschlossen.
Stellplätze für Elektro-Leichtfahrzeuge mit Steckdosen

Zusätzlich können Sie einen Stellplatz inklusive Ladestruktur (230 V Steckdose)
mit den Maßen 1,50 m x 2,50 m
für einen Kabinenroller / City-Cabin-Scooter / Senioren-Scooter (z. B. ECONELO NELO oder MICROLINO)
oder
elektrische Mopeds oder E-Chopper
für jeweils 5.000,- Euro erwerben.

Beispielfoto für ein Elektro Leichtfahrzeig mit 3 Rädern (45 km/h).
Hinweise und Allgemeine Geschäftsbedingungen
Ausführlichere Informationen der Immobilie werden wir Ihnen in einem Exposé zusenden. Bei Interesse benötigen wir von Ihnen Ihre vollständigen Kontaktdaten sowie Ihre E-Mail-Adresse. Füllen Sie hierfür bitte das folgende Kontaktformular aus. Eine telefonsiche Aufnahme Ihrer Daten wird nicht erfolgen. Fragen zu der Immobilie, abgesehen von der Adresse, werden wir Ihnen gerne telefonsich beantworten.
Wichtiger Hinweis: Sollten Sie keine E-Mail von uns sichtbar erhalten, bitten wir Sie, im Spam- bzw. Junk-Mail Ordner Ihres E-Mail-Anbieters nachzusehen!
Das Abgebot ist für Sie als Käufer COURTAGEFREI.
Der Bauträger erhebt eine Projektierungspauschale in Höhe von 3,57 % vom Kaufpreis.
Die Projektierungspauschale dient zur Deckung der bereits erfolgten Vorplanungsleistungen durch den Bauträger. Diese wird bei Abschluss eines Kaufvertrages mit dem Bauträger fällig.
Die Pauschale geht nicht an den vermittelnden Maklerin.
Hiermit zeigen wir Ihnen an, dass wir ebenfalls für die Seite des Verkäufers in dieser Angelegenheit tätig sind.
Bei Erwerb des vorstehend genannten Objektes ist von Ihnen als Käufer für unsere Nachweis- und / oder Vermittlungstätigkeit KEINE MAKLERCOURTAGE zu zahlen. Sämtliche Erwerbsnebenkosten wie 5,5 % Grunderwerbsteuer und ca. 1,5 % Notar- und Gerichtskosten sind allein vom Käufer zu entrichten.
Bei aller Sorgfalt können wir keine Gewähr dafür übernehmen, dass alle Angebotsangaben richtig bzw. vollständig sind und dass das Objekt im Augenblick des Zugangs dieser Offerte noch verfügbar ist. Alle Angaben beruhen auf Auskünften des Eigentümers bzw. Verkäufers. Irrtum bleibt ausdrücklich vorbehalten. Eine Haftung für die Richtigkeit und Vollständigkeit übernehmen wir nicht.
Lesen Sie mehr über unsere ALLGEMEINENE GESCHÄFTSBEDINGUNGEN.
FÜR NÄHERE AUSKÜNFTE UND INDIVIDUELLE BESICHTIGUNGEN
STEHE ICH IHNEN GERN ZUR VERFÜGUNG:
Besichtigung der Musterwohnung und Bauqualität
Die Besichtigung einer Musterwohnung vergleichbarer Größe kann bei dem Bauträger GFG Architektenhäuser in Ahrensburg nach Terminabsprache erfolgen.
KONTAKTFORMULAR FÜR IHRE IMMOBILIENANFRAGE
Gern werde ich Ihnen ausführlichere Informationen zu der Immobilie als Exposé per Mail zusenden.
KONTAKTIEREN SIE MICH GERNE
JOHANNA KARPA
+49 (0)40 234 919 73
+49 (0)176 40 24 72 44 WHATS APP


































































